Projektit
Työprosessi
Glass igloos
Arkkitehdit
Yhteystiedot
Projektit
Työprosessi
Glass igloos
Arkkitehdit
Yhteystiedot
Projektit
Työprosessi
Glass igloos
Arkkitehdit
Yhteystiedot
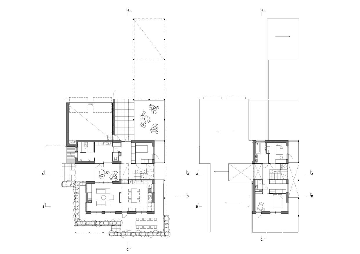
Omakotitalo Kaarina
Omakotitalo Kaarina