Huvila Askainen

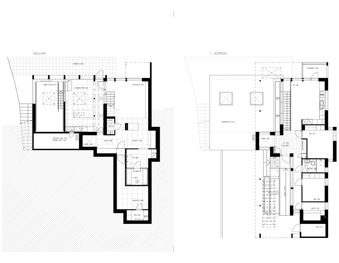
Askainen, Turku 175 m2

Merenrantatontille Mannerheimin synnyinkartanoa vastapäätä sijaitseva suurehko kesäasunto sopii kallioiseen maisemaan, sillä huvila on isolta osalta hakattu kallion sisään, vaikka huvilasta löytyvät kaikki luksusasumisen piirteet, rakennuksessa on säilytetty mökkielämän lämpö ja romanttisuus. Kaikki materiaalit sekä sisällä että ulkona on valittu hoitovapautensa perusteella. Koko rakennuksessa ei ole senttiäkään maalattua pintaa. Kaikki materiaalit on säilytetty niille ominaisessa ulkomuodossa. Puu on puun väristä ja betoni betonin väristä. Huvilassa yhdistyvät suunnittelun sekä toteutuksen yhteensovitus täydellisimmillään.